Skip To Content

1115 Fruit Cove Road

St. Johns, FL 32259
  • $579,000
  • STATUS: Active
  • ON SITE: 27 Days
  • MLS #: 2113642
Price Reduced
UPDATED: 59 min ago
$579,000
  • 4
    BEDS
  • 0.54
    ACRES
  • 2
    BATHS
  • 0
    1/2 BATHS
  • 1,794
    SQFT
  • $323
    $/SQFT
Neighborhood:
Type:
Single-Family Home
Built:
2025
County:

School Information

Elementary School:
Middle School:
High School:

Description

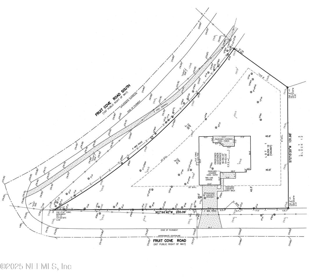
***Open House Sat. Nov. 8th - 12-3pm***New Construction, $20k Closing Cost Assistance, No HOA, Half-Acre Lot, Top Rated St. Johns County Schools! What more could you ask for? Nestled on 0.54 acres in the mature, well-established Fruit Cove neighborhood, this brand-new home offers a rare alternative to cookie-cutter subdivisions. Featuring 4 beds, 2 baths, and 1794 sq ft of modern living, the open-concept floor plan showcases luxury vinyl plank flooring, custom kitchen with quartz countertops, abundant cabinetry, large island with bar seating, stainless appliance suite, and breakfast nook. Enjoy a split-bedroom layout, vaulted ceilings, dedicated laundry room, and covered front and rear porches. With a 2-car garage and plenty of space to park your boat or RV, there's room for all your toys, plus ample yard space for a pool or workshop. Backed by a 2-10 Home Builder's Warranty, this property truly has it all for those seeking comfort, privacy, and the freedom to make it their own.

Monthly Payment Calculator



© 2025 Northeast Florida Multiple Listing Service, Inc. All rights reserved. The data relating to real estate for sale on this web site comes in part from the Internet Data Exchange (IDX) program of the Northeast Florida Multiple Listing Service, Inc. Real estate listings held by brokerage firms other than Century 21 St Augustine Properties are marked with the listing broker’s name and detailed information about such listings includes the name of the listing brokers. Data provided is deemed reliable but is not guaranteed. Data last updated 2025-11-13T17:24:49.763.

Digital Millennium Copyright Act
www.wesellstaugustinerealestate.com/homes/168955101
Print Image

1115 Fruit Cove Road St. Johns, FL 32259

  • Price: $579,000
  • Status: Active
  • On Site: 27 Days
  • Updated: 59 min ago
  • MLS #: 2113642
4
Beds
2
Baths
0
½ Baths
0.54
Acres
1,794
SQFT
$323
$/SQFT
2025
Built
Neighborhood:
Fruit Cove
County:
St. Johns
Area:
301-JULINGTON CREEK/SWITZERLAND
Elementary School:
Julington Creek
Middle School:
Fruit Cove
High School:
Creekside
Property Description
***Open House Sat. Nov. 8th - 12-3pm***New Construction, $20k Closing Cost Assistance, No HOA, Half-Acre Lot, Top Rated St. Johns County Schools! What more could you ask for? Nestled on 0.54 acres in the mature, well-established Fruit Cove neighborhood, this brand-new home offers a rare alternative to cookie-cutter subdivisions. Featuring 4 beds, 2 baths, and 1794 sq ft of modern living, the open-concept floor plan showcases luxury vinyl plank flooring, custom kitchen with quartz countertops, abundant cabinetry, large island with bar seating, stainless appliance suite, and breakfast nook. Enjoy a split-bedroom layout, vaulted ceilings, dedicated laundry room, and covered front and rear porches. With a 2-car garage and plenty of space to park your boat or RV, there's room for all your toys, plus ample yard space for a pool or workshop. Backed by a 2-10 Home Builder's Warranty, this property truly has it all for those seeking comfort, privacy, and the freedom to make it their own.
Exterior Features

Architectural Style Traditional Body Type [] Construction Materials Composition SidingFiber Cement Exterior Features [] Fencing Back Yard Lot Features Irregular Lot Other Structures [] Parking Features Garage Patio And Porch Features CoveredFront PorchRear Porch Pool Features [] Road Surface Type [] Roof Shingle Spa Features [] View [] Waterfront Features [] Waterfront YN No

Interior Features

Appliances DishwasherDisposalElectric RangeMicrowaveRefrigerator Cooling Central Air Cooling YN Yes Fireplace Features [] Flooring Vinyl Furnished Unfurnished Heating Central Heating YN Yes Interior Features Breakfast BarBreakfast NookCeiling Fan(s)Eat-in KitchenKitchen IslandOpen FloorplanPantryPrimary Bathroom - Shower No TubSplit BedroomsWalk-In Closet(s) Laundry Features Electric Dryer HookupWasher Hookup Rooms Total 0

Property Features

Accessibility Features [] Association Amenities [] Association Fee Includes [] Association YN No Attached Garage YN No Cdd Fee YN No Current Use Residential Dpr Eligible YN Yes Electric [] Green Energy Efficient [] Green Water Conservation [] Listing Terms CashConventionalFHAVA Loan New Construction YN Yes Possession Close Of Escrow Property Attached YN No Property Condition [] Property Sub Type Single Family Residence Security Features [] Senior Community YN No Sewer Aerobic Septic Utilities Cable AvailableElectricity Connected Water Source Well Zoning Residential

Listing courtesy of LINWARD REALTY, LLC: 904-424-9333.


© 2025 Northeast Florida Multiple Listing Service, Inc. All rights reserved. The data relating to real estate for sale on this web site comes in part from the Internet Data Exchange (IDX) program of the Northeast Florida Multiple Listing Service, Inc. Real estate listings held by brokerage firms other than Century 21 St Augustine Properties are marked with the listing broker’s name and detailed information about such listings includes the name of the listing brokers. Data provided is deemed reliable but is not guaranteed. Data last updated 2025-11-13T17:24:49.763.

Digital Millennium Copyright Act
 
https://bt-photos.global.ssl.fastly.net/nefar/1280_boomver_1_2113642-2.jpg https://bt-photos.global.ssl.fastly.net/nefar/1280_boomver_1_2113642-2.jpg https://bt-photos.global.ssl.fastly.net/nefar/1280_boomver_1_2113642-2.jpg
Logo
Century 21 St Augustine Properties
2820 US 1 South
St Augustine FL, 32086